還記得上一次Tanya 台北國際會議中心的演唱會曲末,
相約下一次,前進小巨蛋....
參考前篇部落格http://frees.pixnet.net/blog/post/20786920
很快..從2008,瞬間到了2011的3月,夢想成真
Tanya 全新的亞洲巡迴演唱會,正式於小巨蛋起跑.....
天空藍工作室 X 實力影像 X FREE'S
再度的合作,今次的主題
Tanya_and_the_Cities
以「城市」主題,台北、紐約、LA、巴黎與印度5大城市的故事
帶著吉他 走過許許多多的城市
在地圖上的點與點之間移動 孤獨餵養愛情慾望
我們再一次的與實力影像完成了更新的挑戰
運用上千片的LED堆疊出城市建築的輪廓
架構了一個前所未有的影像城市,用我們的視覺方式
來結合Tanya的音樂..傳達這一次要說給大家的故事…
在開場的設計,我們更量身打造一組Tanya專屬的VIDEO電梯,
營造在城市大樓的頂端,帥氣的登場,降臨小巨蛋…
因為電梯採完全無重力支撐下的垂直軌道,並於3層樓以上的高空,
在製做上與結構上,皆花費相當的時間測試,以確保演出的安全與效果的完美…
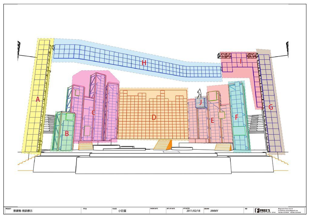
製做工程圖獨家大公開!!!!
接續,便開始用影像與音樂展開一幕一幕的故事旅程…
在營造紐約街頭Bar的場景,搭配著講究的家具,
以及朱朱老師與小夏老師燈光設計的氣氛,讓這一幕美麗到了一個極致!!!
帥氣的薩克斯風手 特別介紹:潘恆建老師/Hank
(台灣爵士薩克斯風界非常重要的風雲人物..今次的Band,陣容非常的堅強!!!!!)
但事實上,在背後的計算場景的位置..可是煞費苦心…
獨家公佈舞台視覺秘方....
負責今次設計案的FREE'S "Jimmy桑"可是與實力影像團隊在對準這個位置來來去去算了好多天!!!!!)
窗戶道具的結合
從天而降的窗戶道具,必須和設計給Tanya的昇降機升起…於半空中對準位置.
形成一個天空之窗的美麗畫面…
再一次的計算計算!!!!
再一次的發揮FREE'S獨家精神…做演唱會的宗旨..就是先把自己給搞死…
再提到相片的這一幕..
話說攝影師在蒐集相片不夠齊全的情況下..
FREE'S也充當救火隊的工作.下海協助攝影...
不止這樣…素人不夠…再將FREE'S的眾家設計師與親友全部撩下去!!!!
所以各位觀眾看到懸掛這些相片中…其中可是有包含我們自己!!!!!
最後安可的"大懷錶"....
於安可最終才登場的大型懷錶…降下時,吸引了大家的驚艷!!!
當齒輪開始轉動.錶燈開始發光…實在令人陶醉…
接著..大型懷錶開始於舞台空中開始搖擺,隨著時光的點滴擺動…
答案揭曉…獨家公布這個工法…
原來是上方兩名舞台技術師父…左右個吊著鋼絲..綁住大懷錶的兩側....輪流拉放.....哈!!!
另外,在歐洲黑白的部份,更第一次於現場看到Tanya的一段美麗的歌舞,,
搭配視覺影像,讓人更難忘這一段彷彿置身歐洲高劇院....






當晚的特別嘉賓
蘇打綠的青峰
以及天后那英(特別推薦"長鏡頭"這首歌..非常好聽)
由Tanya為那英所製作,尚未推出..當晚是現場首次曝光
今次的演出..比三年前的TICC更為成功..更為感動..
能夠參與Tanya的演唱會…本身就是個享受…
因為她的歌曲… 實在是太好聽了.....台北巨蛋,成功結束…
但這只是亞洲巡迴演唱會的開始.........
馬上,我們即將著手進行…Tanya返回自己的家鄉光榮公演…海外首站
新加坡室內體育館 Singapore Indoor Stadium
http://www.sportshub.com.sg/eventsCalender.asp?filter=4,2011&event_id=414
台灣的歌迷朋友..如果錯過台北巨蛋這一場…請千萬別再錯過…
2011 / 04 / 23(六)19:30 台中圓滿戶外劇場
主辦單位:大大國際娛樂
購票連結
http://www.ticket.com.tw/dm.asp?P1=0000011304
聽著Tanya 感受最寂寞 也是最深沉的撫慰
2011蔡健雅Tanya & the Cities 亞洲巡迴演唱會
十四張專輯,每一首都是對愛的記念
2011年,蔡健雅在台北小巨蛋
與你一起在城市的流轉中,溫暖彼此。
2011年,就從小巨蛋出發去旅行!!!!
留言列表